三ツ沢エリアを中心に横浜市全域の不動産(売買,賃貸,売却)の事ならセンチュリー21エクセルホームにお任せ下さい。

  • 全てを選択する
  • 選択を解除する
印刷用ページへ
《賃貸/一戸建て》
相鉄本線西横浜駅より徒歩5分!ペット相談可能な貸戸建になります!(敷金1ヶ月積増、退去時償却)
賃料
管理費/共益費
敷金
礼金
保証金
敷引
間取り 専有面積 築年
218,000円
-/-
2ヶ月
1ヶ月

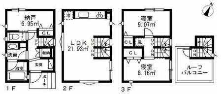
3LDK 71.5m2 2018年7月
間取り図外観

玄関

キッチン

バス

洗面台・洗面所

トイレ

その他設備

セキュリティ

収納

バルコニー

現地からの眺望

駐車場

その他内観

洋室

リビング

左へ
右へ
所在地 神奈川県横浜市西区浜松町
交通 相模鉄道本線/西横浜駅まで徒歩5分
その他交通 京浜急行電鉄本線/戸部駅まで徒歩13分
建物構造/階数 木造/3階 部屋向き 南西
間取り詳細 LDK 13.5帖、S 4.2帖、洋 5帖、洋 5.5帖
バルコニー面積 現況 空き
引渡時期 即引渡し可 駐車場 有り無料
借家権の種類 普通借家権 契約期間 2年
定期借家契約期限 火災保険 要 2年 23,000円
設備 ガス(都市ガス)、水道(公営水道)、汚水(公共下水)、雑排水(公共下水)、バイク置場、駐輪場、日当り良好、部屋 南西向き、3面採光、南面リビング、バルコニー有、ルーフバルコニー、南面バルコニー、火災警報器(報知機)、LDK 12帖以上、全居室洋室、システムキッチン、ガスコンロ、コンロ 三口、グリル、キッチンに窓、給湯器、洗面所独立、独立洗面台、バストイレ別、バス専用、シャワー、浴室乾燥機、温水洗浄便座、エアコン有、24時間換気システム、フローリング、全居室フローリング、室内洗濯機置場、収納、クローゼット、シューズボックス、TVインターホン、ペット相談、楽器相談、保証人不要、二人入居可、事務所可、即入居可、照明器具、追い焚き、保証会社利用可、礼金1ヶ月、敷金2ヶ月、保証金不要、3沿線以上利用可、3駅以上利用可、駅徒歩5分以内、都市ガス、納戸、都市ガス給湯、専用トイレ、初期費用 クレジット決済可、上水道(公営)、汚水(下水道)
備考 駐車場が無料で利用できます!24時間換気システム搭載!
取引態様 仲介
お問い合わせ番号 068001-15937c-11866 物件更新日 2026年04月02日




  • 全てを選択する
  • 選択を解除する

センチュリー21の加盟店は、すべて独立・自営です。