三ツ沢エリアを中心に横浜市全域の不動産(売買,賃貸,売却)の事ならセンチュリー21エクセルホームにお任せ下さい。

  • 全てを選択する
  • 選択を解除する
印刷用ページへ
《賃貸/マンション》 コンフォートK
南東向きの最上階角部屋!ウォークインクローゼットや押入と収納スペースがたくさんあります!
賃料
管理費/共益費
敷金
礼金
保証金
敷引
間取り 専有面積 築年
146,000円
5,500円/-
1ヶ月
1ヶ月

2LDK 58.9m2 2001年9月
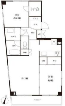
間取り図外観

玄関

キッチン

バス

洗面台・洗面所

トイレ

収納

セキュリティ

その他設備

バルコニー

現地からの眺望

寝室

収納

その他内観

左へ
右へ
所在地 神奈川県横浜市神奈川区泉町
交通 東急東横線/反町駅まで徒歩3分
その他交通 横浜市ブルーライン/三ツ沢下町駅まで徒歩10分
建物構造 鉄骨造 間取り詳細 LDK 12帖、洋 5.8帖、洋 6帖
所在階/階数 4階/4階 部屋向き 東南
バルコニー面積 現況 空き
引渡時期 即引渡し可 駐車場
借家権の種類 普通借家権 契約期間 2年
定期借家契約期限 火災保険 要 2年 20,000円
設備 ガス(都市ガス)、水道(公営水道)、汚水(公共下水)、雑排水(公共下水)、駅まで平坦、部屋の階(最上階)、角部屋、日当り良好、部屋 南東向き、南面2室、2面採光、バルコニー有、火災警報器(報知機)、LDK 12帖以上、全居室洋室、システムキッチン、IHクッキングヒーター、コンロ 三口、グリル、キッチンに窓、給湯器、洗面所独立、独立洗面台、バストイレ別、バス専用、シャワー、温水洗浄便座、タンクレストイレ、エアコン有、フローリング、全居室フローリング、室内洗濯機置場、収納、押入、ウォークインクローゼット、シューズボックス、TVインターホン、即入居可、礼金1ヶ月、敷金1ヶ月、保証金不要、3沿線以上利用可、3駅以上利用可、駅徒歩5分以内、都市ガス、都市ガス給湯、専用トイレ、初期費用 クレジット決済可、上水道(公営)、汚水(下水道)、全室2面採光
備考 キッチンにも収納スペースがいっぱい!3口のIHクッキングヒーターも付いています♪
取引態様 仲介
お問い合わせ番号 068001-15791c-11767 物件更新日 2026年04月02日




  • 全てを選択する
  • 選択を解除する

センチュリー21の加盟店は、すべて独立・自営です。