三ツ沢エリアを中心に横浜市全域の不動産(売買,賃貸,売却)の事ならセンチュリー21エクセルホームにお任せ下さい。

  • 全てを選択する
  • 選択を解除する
印刷用ページへ
《賃貸/マンション》
ペット相談可!(飼育の場合は敷金2ヶ月)2面採光の角部屋です!収納スペース・シューズボックスもあります!LINEでお問い合わせ歓迎!ID@ynh0276zで検索。トークでお問い合わせも可能です♪
賃料
管理費/共益費
敷金
礼金
保証金
敷引
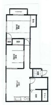
間取り 専有面積 築年
77,000円
3,000円/-
1ヶ月

2LDK 50m2 1968年10月
間取り図外観

玄関

キッチン

バス

収納

洗面台・洗面所

トイレ

エントランス

その他内観

その他設備

その他

左へ
右へ
所在地 神奈川県横浜市保土ケ谷区岩井町
交通 湘南新宿ライン宇須/保土ケ谷駅まで徒歩9分
その他交通 横須賀線/保土ケ谷駅まで徒歩9分
建物構造 鉄筋コンクリート造 間取り詳細 和 8帖、和 6帖、LDK 11帖
所在階/階数 2階/4階 B1階 部屋向き
バルコニー面積 現況 空き
引渡時期 即引渡し可 駐車場
借家権の種類 普通借家権 契約期間 2年
定期借家契約期限 火災保険 要 2年 18,000円
設備 ガス(LPG)、水道(公営水道)、汚水(公共下水)、雑排水(公共下水)、角部屋、2面採光、バルコニー有、和室、独立型キッチン、コンロなし(ガスコンロ設置可)、洗面所独立、独立洗面台、バストイレ別、バス専用、浴室に窓、フローリング、室内洗濯機置場、収納、押入、シューズボックス、インターネット対応済、ペット相談、保証人不要、二人入居可、事務所可、即入居可、礼金不要、敷金1ヶ月、2沿線利用可、2駅利用可、駅徒歩10分以内、プロパンガス、専用トイレ、子供入居可、初期費用 クレジット決済可、上水道(公営)、汚水(下水道)
備考 ペット相談可!(飼育の場合は敷金2ヶ月)2面採光の角部屋です!バストイレ別!収納スペース・シューズボックスもあります!LINEでお問い合わせ歓迎!ID@ynh0276zで検索。トークでお問い合わせも可能です♪
取引態様 仲介
お問い合わせ番号 068001-16118c-11967 物件更新日 2026年03月30日




  • 全てを選択する
  • 選択を解除する

センチュリー21の加盟店は、すべて独立・自営です。